Kynance Gardens, Stanmore, Greater London - Instruction to Sell £600,000





A 1930's Built Three Bedroom Semi-Detached House available chain free.

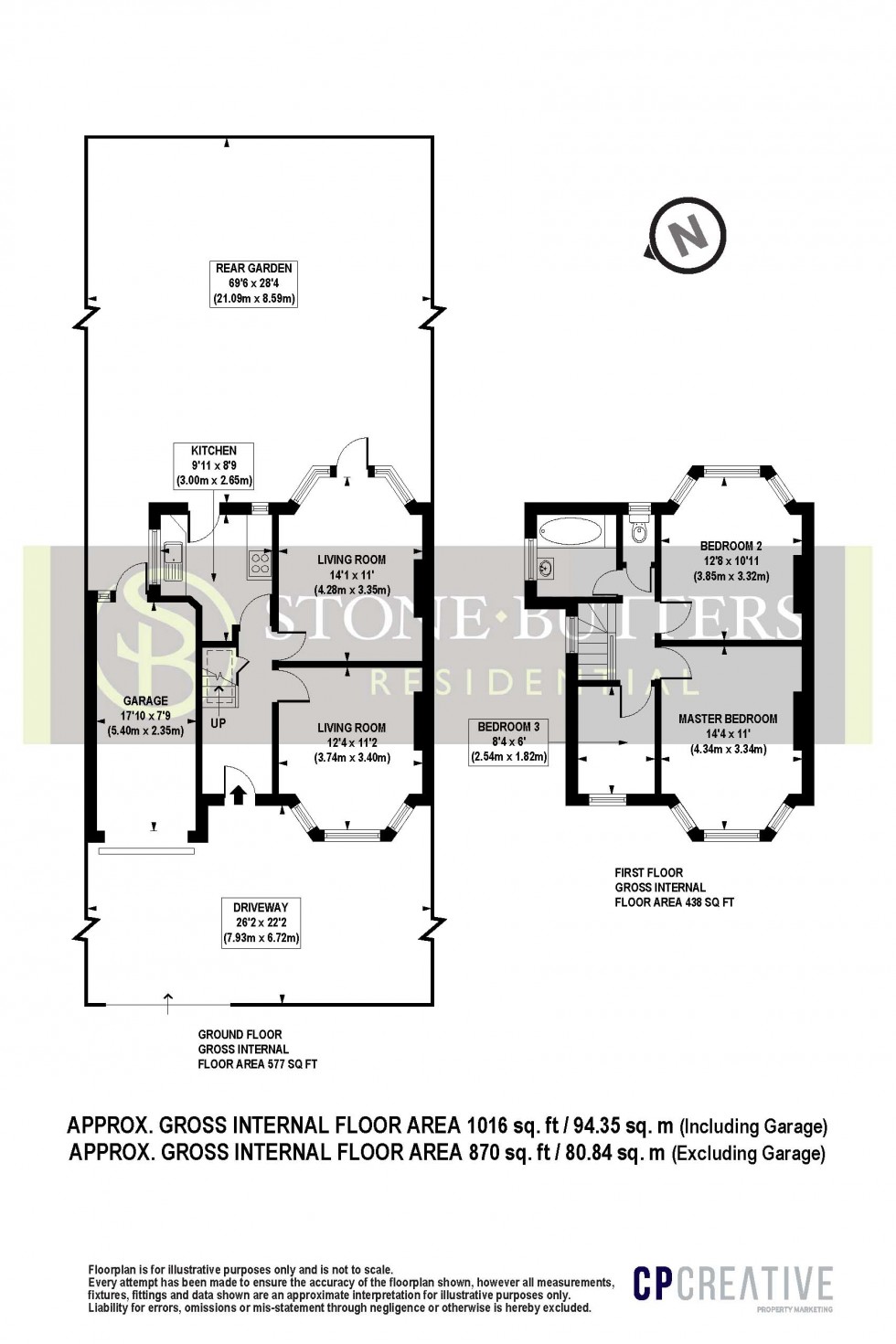
The house is available requiring complete modernisation. With two reception rooms, a separate kitchen, garage to the side, three bedrooms and a family bathroom with separate wc. There is a private rear garden, front garden and driveway parking space.

Extension potential is possible to convert the garage, rear additions, first floor and roof extensions all subject to the usual planning permissions.



  • Three Bedrooms
  • Two Reception Rooms
  • No Chain
  • Separate Kitchen

Location

Kynance Gardens is a popular residential road in Stanmore in close proximity to schools including Park High School, Whitchurch and Avanti House School, and open spaces. The nearest tube station is Canons Park; Stanmore and Queensbury are also easily accessible.

Floorplan for Kynance Gardens, Stanmore, Greater London
EPC Graph for Kynance Gardens, Stanmore, Greater London

The Property Ombudsman Trading Standards Approved Code