Wolverton Road, Stanmore - Instruction to Sell £625,000





Offering Ample Potential For Further Extensions (STPP), this 3 Bedroom Extended Semi Detached property is located in this quiet cul-de-sac being a short walk to multiple award winning schools. With 3 reception areas and a kitchen/diner the property has a downstairs bathroom/wc plus en-suite shower area. Off street parking and west facing rear garden.



  • Potential For Further Extension(STPP)
  • 3 Reception Areas
  • Fitted Kitchen/ Breakfast Area
  • Off Street Parking
  • West Facing Garden
  • Quiet Cul De Sac Location
  • Close To Award Winning Primary Schools
  • Ideal Family Home

Location

Wolverton Road is a much sought after address located off Old Church Lane, being within walking distance to the Jubilee Line tube station, bus services and shopping facilities.

Numerous local and private schools are nearby including Avanti, Whitchurch and Stanburn junior schools & the renowned North London Collegiate for girls.

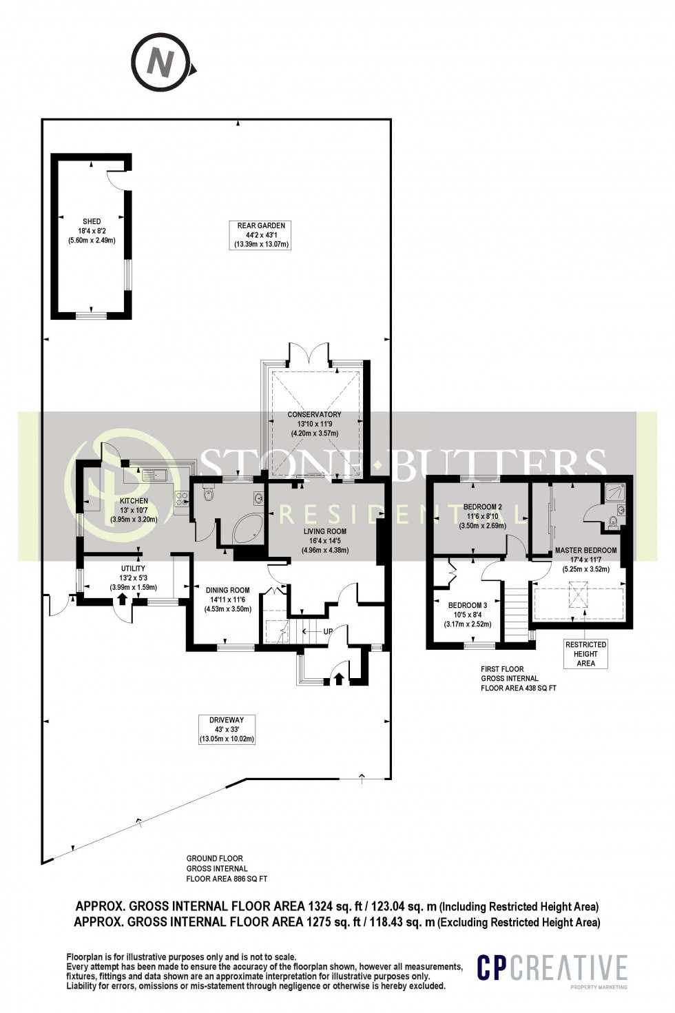
Floorplan for Wolverton Road, Stanmore
EPC Graph for Wolverton Road, Stanmore

The Property Ombudsman Trading Standards Approved Code