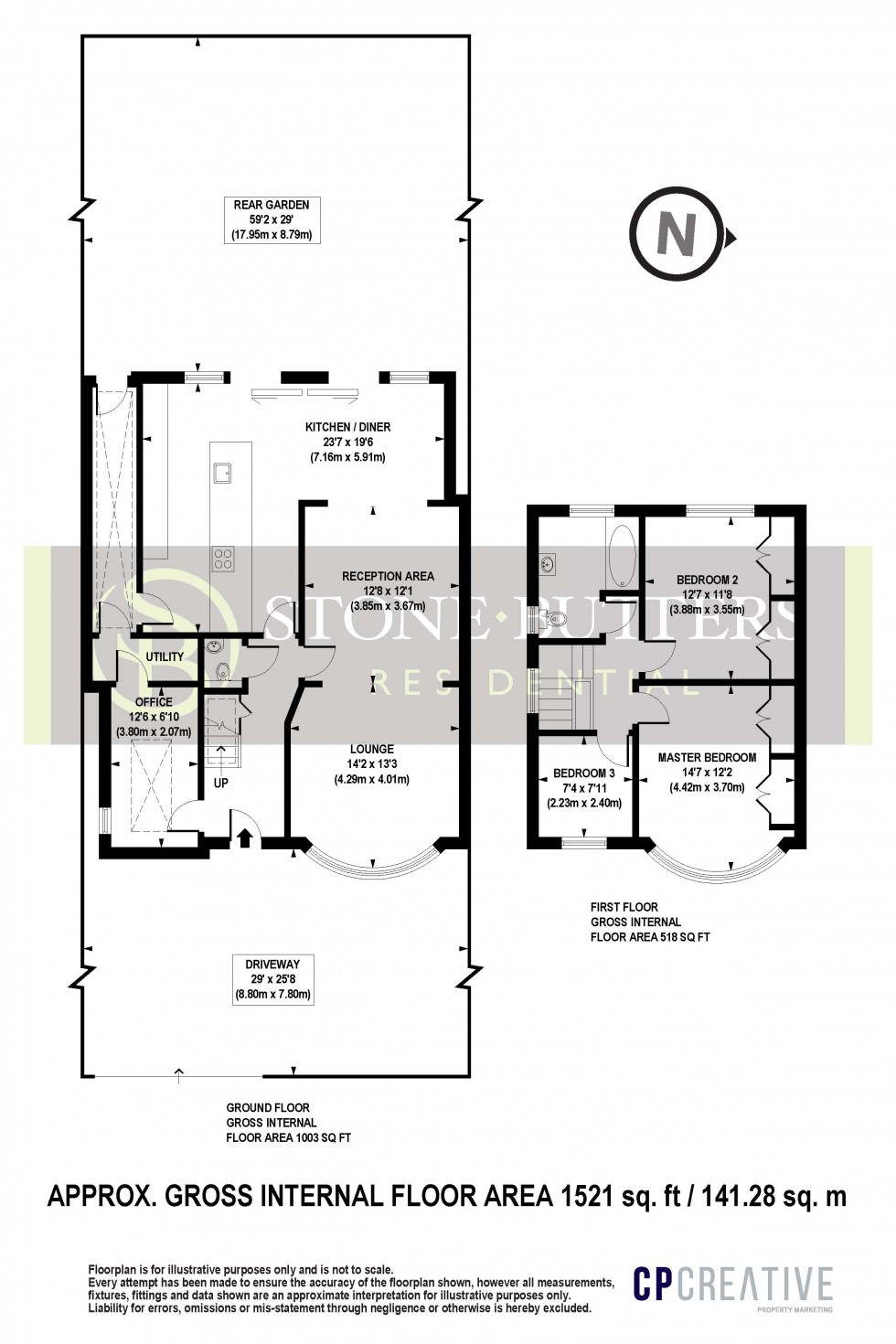
Superb Bright & Airy Extended 3 Bedroom Semi Detached Family Home, set in this popular location off the Uxbridge Road being close Stanmore's shopping and transport facilities. Benefiting from a single storey rear extension to create a stunning kitchen/dining area plus the garage has been converted into an office & utility area, guests cloakroom. West facing rear garden with off street parking for numerous cars.
Conveniently located off the Uxbridge Road near to local schools, shops, and transport links such as Stanmore Station, which can get you into Central London in less than 45 minutes.
The A41, A5, M1 and M25 are also easily accessible.
 
 					
                    