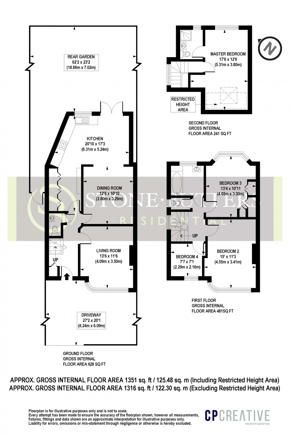
Located A Short Walk From Stanmore Station, this 4 Bedroom 2 Bathroom (One En-Suite) Extended Family Home has the benefit of off street parking for 2 cars and guests cloakroom. The rear extension has created a kitchen/dining area with doors overlooking the rear garden.
Merrion Avenue is within walking distance to local schools, shops and transport links this property is within close proximity to Stanmore Broadway. Nearby to local tube stations such as Stanmore, Canons Park and Edgware station with links into Central London and the A41, A5, M1 and M25 are also easily accessible.
